Verkocht onder voorbehoud:Paulus van Asperenpad 9, 3151 JA Hoek van Holland - Foto
Verkocht onder voorbehoud
+40

Paulus van Asperenpad 9 3151 JA Hoek van Holland € 455.000,- k.k.

  • Woonhuis
  • 5 kamers
  • 4 slaapkamers
  • 1 badkamers
  • Bouwjaar 1988
  • 186 m² perceeloppervlakte
  • 115 m² gebruiksoppervlakte
  • C Energielabel C

Beschrijving

Ruimte, Licht en Comfort op een Fijne Locatie
Op zoek naar een gezinswoning waar je direct een fijn gevoel krijgt zodra je de voordeur opent? Deze hoekwoning in het gezellige Hoek van Holland staat te popelen om een nieuw bewoner(s) te verwelkomen.

Hoek van Holland staat bekend om haar groene, rustige karakter en de directe nabijheid van strand, zee en duinen. Hier fiets je in een mum van tijd naar het strand voor een frisse wandeling of een relaxte zomerdag. Dagelijkse voorzieningen zoals basisscholen, winkels, supermarkten en sportverenigingen zijn letterlijk om de hoek te vinden, waardoor alles wat je nodig hebt altijd in de buurt is. Ook uitvalswegen richting Rotterdam, Den Haag en het Westland liggen op korte afstand, evenals openbaar vervoer (bus, metro).

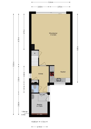
Indeling

Parkeren voor de deur en binnenstappen maar
Stel je even voor: na een drukke dag kun je de auto gewoon voor de deur kwijt, op je eigen ruime oprit. Geen gedoe met zoeken; dat is pas thuiskomen.

Eenmaal aangekomen open je de deur en stap je de hal binnen waar alles logisch op z’n plek zit: aan je linkerhand vind je een super praktische berging (altijd handig voor fietsen of extra voorraad!) en meteen daarnaast de modern afgewerkte toiletruimte. De trap leidt je soepel naar boven, terwijl de lichte woonkamer je eigenlijk al roept.

Lichte woonkamer met open haard
Wat direct opvalt als je de woonkamer binnenloopt, is de zee aan licht die dankzij de grote aluminium schuifpui naar binnen stroomt. Die pui verbindt binnen met buiten op een manier die bijna doet denken aan zonnige vakantiedagen. De openhaard, nodigt uit tot lange winteravonden met een boek, een borrel en familie dichtbij. Onder de trap schuilt nog een verrassend ruime kast – altijd een uitkomst voor voorraad of kinderspeelgoed.

Open keuken met karakter
Aan de voorzijde van de woning vind je de keuken die in de afgelopen 25 jaar haar eigen karakter heeft opgebouwd. Maar daar draait het hem juist om: het is een plek waar geleefd is, gekookt, gelachen en gedeeld. Alles wat je nodig hebt is aanwezig, van een combimagnetron tot een keramische kookplaat, een ruime vaatwasser en afzuigkap.

Eerste verdieping

Drie royale slaapkamers en een moderne badkamer
Even de trap opstappen naar de eerste verdieping, waar drie volwaardige slaapkamers klaarstaan om ingevuld te worden als ouderkamer, kinderkamers, werk- of hobbyruimte. De ouderslaapkamer heeft ook nog eens toegang tot een eigen balkon, ideaal als je graag even je hoofd buiten de deur steekt in de ochtendzon.
Verder vind je op deze etage een moderne badkamer, compleet met een inloopdouche met schuifdeur, een zwevend toilet en een praktisch wastafelmeubel met spiegelkast en extra bergruimte. Hier kom je echt tot rust na een drukke dag.

Tweede verdieping

Mega grote zolder: jouw droomruimte
De tweede verdieping? Die is werkelijk riant. Denk groot! Of je nu behoefte hebt aan nóg meer slaapkamers, die lang gewenste thuiswerkplek, een speelzolder of misschien een creatieve studio: het kan allemaal, want deze ruimte biedt bijna oneindig veel mogelijkheden. Met twee dakramen plus een zijraam geniet je hier bovendien van volop daglicht. Verder tref je hier de CV-opstelling en handige wasmachine-aansluiting.

Tuin

Zonnige tuin op het zuiden
Het buitenleven wordt in deze woning minstens zo aantrekkelijk als het binnen. De flinke achtertuin, gunstig gelegen op het zuiden, zit vol volwassen beplanting. Aan de zijkant van het huis loopt het perceel door, met een ruime poort, veel vaste planten en zelfs een praktisch schuurtje – ideaal voor tuinspullen of fietsen.

Bijzonderheden

Bijzonderheden-
• Toilet en badkamer zijn vernieuwd
• Dubbelglas
• Ruime achtertuin
• Eigenparkeerplaats
• Lek raam

-Dichtbij-
• Strand
• Metrostation
• Basisschool
• Winkels

-Clausule-
• Ouderdomsclausule: Gezien de leeftijd van de woning wordt de Ouderdomsclausule opgenomen in de koopovereenkomst
• Niet bewonersclausule: De verkopers hebben niet zelf in de woning gewoond

Kaart

Kenmerken

Overdracht

Referentienummer
00229
Vraagprijs
€ 455.000,- k.k.
Status
Verkocht onder voorbehoud
Aanvaarding
Direct
Aangeboden sinds
Vrijdag 14 november 2025
Laatste wijziging
Dinsdag 27 januari 2026

Bouw

Type object
Woonhuis, eengezinswoning, hoekwoning
Soort bouw
Bestaande bouw
Bouwperiode
1988
Dakbedekking
Bitumen
Dakpannen
Type dak
Samengesteld
Isolatievormen
Dubbel glas

Oppervlaktes en inhoud

Perceeloppervlakte
186 m²
Woonoppervlakte
115 m²
Inhoud
430 m³
Oppervlakte overige inpandige ruimten
6 m²
Oppervlakte gebouwgebonden buitenruimte
6 m²

Indeling

Aantal bouwlagen
3
Aantal kamers
5 (waarvan 4 slaapkamers)
Aantal badkamers
1 (en 1 apart toilet)

Locatie

Ligging
Aan rustige weg

Tuin

Type
Achtertuin
Hoofdtuin
Ja
Oriëntering
Zuiden
Heeft een achterom
Ja
Staat
Normaal

Energieverbruik

Energielabel
C

CV ketel

Warmtebron
Gas
Eigendom
Eigendom

Uitrusting

Aantal parkeerplaatsen
1
Warm water
CV-ketel
Parkeergelegenheid
Parkeerplaats
Tuin aanwezig
Ja
Heeft schuur/berging
Ja
Heeft een dakraam
Ja
Heeft een schuifpui
Ja

Kadastrale gegevens

Kadastrale aanduiding
Rotterdam B 4189
Perceeloppervlakte
186 m²
Omvang
Geheel perceel
Eigendomsituatie
Eigendom belast met erfpacht
Lasten
Tijdelijk,

Brochure(s) en overige bijlagen

Brochure Paulus van Asperenpad 9 HvH.pdf Download