Verkocht onder voorbehoud:Merellaan 114, 3145 XG Maassluis - Foto
Verkocht onder voorbehoud
+41

Merellaan 114 3145 XG Maassluis € 480.000,- k.k.

  • Woonhuis
  • 6 kamers
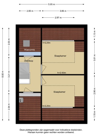
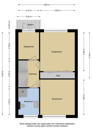
  • 5 slaapkamers
  • 1 badkamers
  • Bouwjaar 1966
  • 160 m² perceeloppervlakte
  • 138 m² gebruiksoppervlakte
  • C Energielabel C

Beschrijving

Deze woning is direct verkocht u kunt hiervoor geen afspraak meer inplannen. Ruime 6 kamer-eengezinswoning (5 slaapkamers) in de populaire vogelwijk met uitzicht op de Waterweg. De woning is goed onderhouden, is licht ingericht met o.a. een Open keuken en een zolder met dakkapel inclusief rolluik aan voor en achterzijde.

Kaart

Kenmerken

Overdracht

Referentienummer
00225
Vraagprijs
€ 480.000,- k.k.
Status
Verkocht onder voorbehoud
Aanvaarding
Per woensdag 18 februari 2026
Aangeboden sinds
Maandag 3 november 2025
Laatste wijziging
Woensdag 26 november 2025

Bouw

Type object
Woonhuis, eengezinswoning, tussenwoning
Soort bouw
Bestaande bouw
Bouwperiode
1966
Dakbedekking
Dakpannen
Type dak
Samengesteld
Isolatievormen
Grotendeels dubbel glas

Oppervlaktes en inhoud

Perceeloppervlakte
160 m²
Woonoppervlakte
138 m²
Inhoud
486 m³
Oppervlakte externe bergruimte
7 m²
Oppervlakte gebouwgebonden buitenruimte
2 m²

Indeling

Aantal bouwlagen
3
Aantal kamers
6 (waarvan 5 slaapkamers)
Aantal badkamers
1 (en 1 apart toilet)

Locatie

Ligging
Dichtbij openbaar vervoer
Nabij school
Nabij snelweg

Energieverbruik

Energielabel
C

CV ketel

CV ketel
Intergas
Warmtebron
Gas
Bouwjaar
2019
Combiketel
Ja
Eigendom
Eigendom

Uitrusting

Verwarmingssysteem
Centrale verwarming
Heeft een balkon
Ja
Glasvezelaansluiting aanwezig
Ja
Heeft rolluiken
Ja

Kadastrale gegevens

Kadastrale aanduiding
Maassluis A 1073
Perceeloppervlakte
160 m²
Omvang
Geheel perceel
Eigendomsituatie
Eigen grond