Verkocht:Merellaan 241, 3145 EH Maassluis - Foto
Verkocht
+34

Merellaan 241 3145 EH Maassluis

  • Appartement
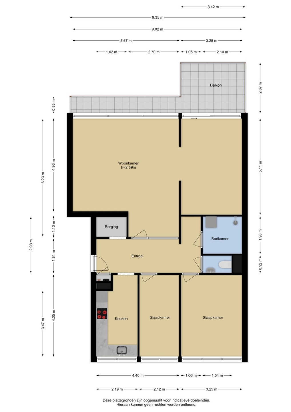
  • 4 kamers
  • 3 slaapkamers
  • 1 badkamer
  • Bouwjaar 1969
  • 104 m² gebruiksoppervlakte
  • D Energielabel D

Kaart

Kenmerken

Overdracht

Referentienummer
00244
Vraagprijs
€ 375.000,- k.k.
Servicekosten
€ 386,-
Elektra
€ 35,-
Verwarming
€ 150,-
Water
€ 15,-
Inrichting
Niet gestoffeerd
Inrichting
Niet gemeubileerd
Status
Verkocht
Aanvaarding
In overleg
Aangeboden sinds
Woensdag 11 maart 2026
Laatste wijziging
Vrijdag 10 april 2026

Bouw

Type object
Appartement, portiekflat
Woonlaag
8e woonlaag
Soort bouw
Bestaande bouw
Bouwperiode
1969
Isolatievormen
Dubbel glas
HR-glas

Oppervlaktes en inhoud

Woonoppervlakte
104 m²
Inhoud
353 m³
Oppervlakte overige inpandige ruimten
7 m²
Oppervlakte gebouwgebonden buitenruimte
14 m²

Indeling

Aantal bouwlagen
1
Aantal kamers
4 (waarvan 3 slaapkamers)
Aantal badkamers
1 (en 1 apart toilet)

Locatie

Ligging
Aan rustige weg
Aan vaarwater
Dichtbij openbaar vervoer
Nabij school
Nabij snelweg
Vrij uitzicht

Energieverbruik

Energielabel
D

Uitrusting

Warm water
Elektrische boiler
Verwarmingssysteem
Blokverwarming
Heeft een balkon
Ja
Heeft een lift
Ja
Glasvezelaansluiting aanwezig
Ja
Heeft schuur/berging
Ja
Heeft een schuifpui
Ja
Heeft zonwering
Ja

Vereniging van Eigenaren

Ingeschreven bij de KvK
Ja
Jaarlijkse vergadering
Ja
Periodieke bijdrage
Ja
Reservefonds
Ja
Meer jaren onderhoudsplan
Ja
Onderhoudsverwachting
Ja
Opstal verzekering
Ja

Kadastrale gegevens

Kadastrale aanduiding
Maassluis A 4394
Perceeloppervlakte
3.278 m²
Omvang
Appartementsrecht of complex
Eigendomsituatie
Eigen grond
Indexnummer
3