Verkocht onder voorbehoud:Merellaan 91, 3145 EC Maassluis - Foto
Verkocht onder voorbehoud
+46

Merellaan 91 3145 EC Maassluis € 365.000,- k.k.

  • Appartement
  • 4 kamers
  • 3 slaapkamers
  • 1 badkamer
  • Bouwjaar 1970
  • 104 m² gebruiksoppervlakte
  • Gestoffeerd
  • F Energielabel F

Beschrijving

Sfeervol wonen aan de Waterweg – Ruimte, Licht en een Uniek Uitzicht!
Droom je van een woning waar geen dag hetzelfde is? Welkom op de Merellaan 91 in Maassluis.
Dit royale 4-kamer appartement op de eerste verdieping biedt je een unieke combinatie van modern wooncomfort en een spectaculair uitzicht over de Waterweg. Hier zie je de indrukwekkende scheepvaart aan je voorbijtrekken als een levend schilderij.

De locatie in Maassluis is ideaal. Voor je dagelijkse boodschappen of een middagje shoppen loop je zo naar Winkelcentrum Koningshoek. Heb je zin in cultuur? Theater Koningshof ligt vrijwel om de hoek. Daarnaast ben je uitstekend verbonden: het metrostation ligt op korte loopafstand, waardoor je binnen no-time in Rotterdam of op het strand van Hoek van Holland staat. En binnen 5 minuten wandel of fiets je langs de Waterweg.

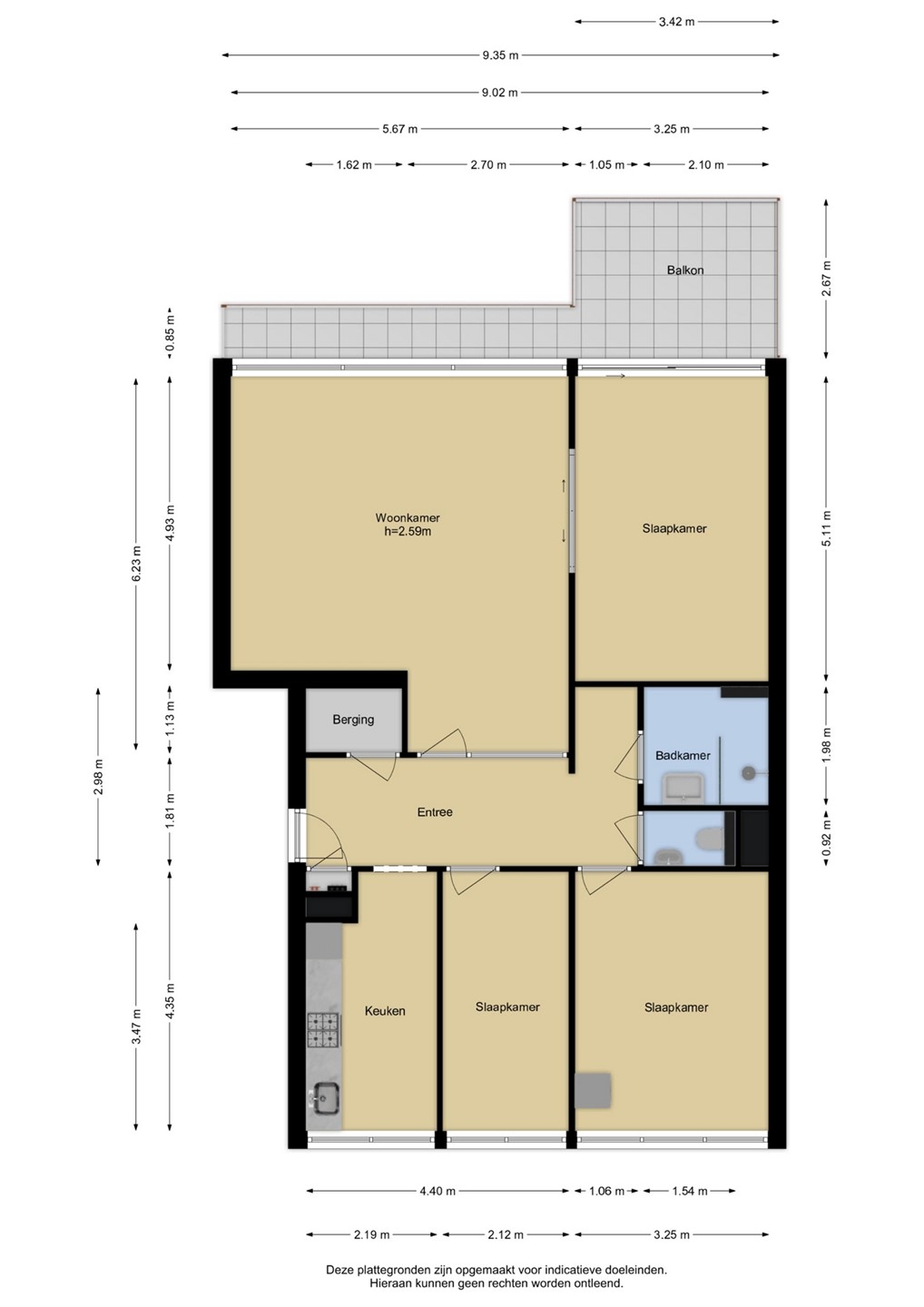
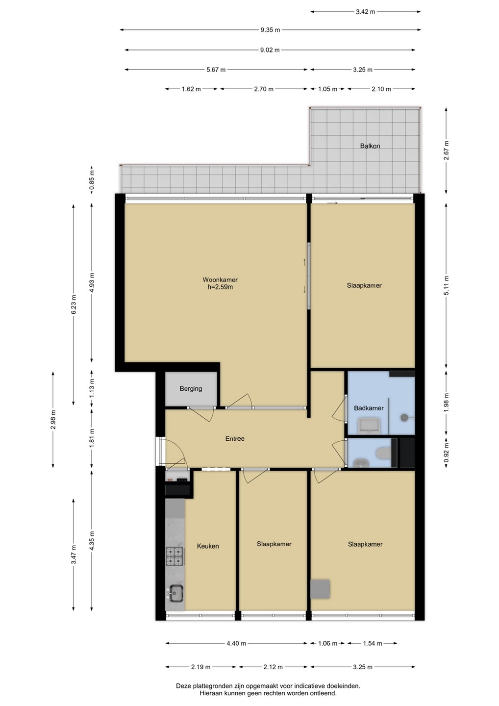
Indeling

Comfortabel binnenkomen
Via de centrale entree met bellentableau bereik je met de lift of de trap de eerste etage. Bij binnenkomst in de hal vind je de garderobe en de meterkast, waarna de ontdekkingsreis door dit lichte appartement begint.

Wonen met een weids uitzicht
De woonkamer is zonder twijfel het hart van het huis. Dankzij de grote raampartijen word je direct gegrepen door het uitzicht op de boten die voorbijvaren. Er is volop ruimte voor een grote eethoek waar je gerust met acht personen kunt aanschuiven. De zithoek bij het raam is de ideale plek om te ontspannen, met zicht op zowel de televisie als de bedrijvigheid op het water.

Ensuite sfeer en buitenleven
Via de prachtige houten ensuite deuren bereik je de masterbedroom. Deze ruimte heeft een gloednieuwe kunststof schuifpui die toegang biedt tot het zonnige balkon. Hier geniet je tot laat in de avond van de zon en het unieke uitzicht over de Waterweg.

Een keuken met karakter
Aan de overzijde van de woonkamer tref je de moderne keuken. Deze heeft recent een smaakvolle make-over gekregen: de kastjes zijn uitgevoerd in een trendy matgroene kleur (wrap), wat prachtig contrasteert met het houtgekleurde aanrechtblad. De vloer is voorzien van gloednieuw laminaat en de keuken is van alle gemakken voorzien, waaronder een 4-pits gaskookplaat, vaatwasser, koelkast, vriezer en afzuigkap.

Ruimte voor alles en iedereen
Naast de keuken bevinden zich twee fijne kamers. Momenteel is één kamer in gebruik als slaapkamer en de tweede als een royale garderoberuimte.

Rust en eenheid in het sanitair
De nette badkamer is volledig uitgevoerd met rustgevende zandkleurige tegels en uitgerust met een inloopdouche en een modern wastafelmeubel.

Direct daarnaast bevindt zich de toiletruimte, die geheel in stijl met de badkamer is afgewerkt. Het toilet is modern zwevend uitgevoerd en voorzien van een fonteintje.
Praktisch detail: de wasmachineopstelling en de boiler zijn slim weggewerkt in een aparte ruimte in de gang.

Balkon

Ensuite sfeer en buitenleven
Via de prachtige houten ensuite deuren bereik je de masterbedroom. Deze ruimte heeft een gloednieuwe kunststof schuifpui die toegang biedt tot het zonnige balkon. Hier geniet je tot laat in de avond van de zon en het unieke uitzicht over de Waterweg.

Bijzonderheden

In de onderbouw van het complex heb je bovendien de beschikking over een eigen berging, ideaal voor je fiets en alle overige spullen die je graag uit het zicht opbergt.

Duurzaamheid voorop
Je koopt hier een woning in een complex waar de VvE actief investeert in de toekomst.
Met een nieuwe gemeenschappelijke warmtepomp, maar liefst 84 zonnepanelen en recent aangebrachte spouwisolatie en HR++ glas, woon je hier met een gerust hart.

-Oplevering-
Medio september 2026

-Bijzonderheden-
• Instapklaar
• HR++ dubbelglas
• Kunststof schuifpui
• Balkonvloer gecoat
• Voorzijde kozijnen geverfd 2025
• Eigen berging
• Vrij uitzicht

-Dichtbij-
• Winkelcentrum Koningshoek
• Metro
• Snelweg binnen ca. 10 minuten
• Theater Koningshof en bibliotheek

Kaart

Kenmerken

Overdracht

Referentienummer
00242
Vraagprijs
€ 365.000,- k.k.
Servicekosten
€ 430,-
Elektra
€ 62,-
Gas
€ 62,-
Verwarming
€ 100,-
Water
€ 19,-
Inrichting
Ja
Inrichting
Gestoffeerd
Status
Verkocht onder voorbehoud
Aanvaarding
In overleg
Aangeboden sinds
Dinsdag 10 maart 2026
Laatste wijziging
Dinsdag 31 maart 2026

Bouw

Type object
Appartement, portiekflat
Woonlaag
1e woonlaag
Soort bouw
Bestaande bouw
Bouwperiode
1970
Dakbedekking
Bitumen
Type dak
Platdak
Isolatievormen
Dubbel glas
HR-glas
Muurisolatie
Spouwmuren

Oppervlaktes en inhoud

Woonoppervlakte
104 m²
Inhoud
353 m³
Oppervlakte externe bergruimte
7 m²
Oppervlakte gebouwgebonden buitenruimte
14 m²

Indeling

Aantal bouwlagen
1
Aantal kamers
4 (waarvan 3 slaapkamers)
Aantal badkamers
1

Locatie

Ligging
Aan vaarwater
Dichtbij openbaar vervoer
Nabij school
Nabij snelweg

Energieverbruik

Energielabel
F

Uitrusting

Warm water
Elektrische boiler
Verwarmingssysteem
Blokverwarming
Ventilatie methode
Mechanische ventilatie
Heeft een balkon
Ja
Heeft een lift
Ja
Glasvezelaansluiting aanwezig
Ja
Heeft schuur/berging
Ja
Heeft een schuifpui
Ja
Heeft zonwering
Ja
Heeft ventilatie
Ja

Vereniging van Eigenaren

Ingeschreven bij de KvK
Ja
Jaarlijkse vergadering
Ja
Periodieke bijdrage
Ja
Reservefonds
Ja
Onderhoudsverwachting
Ja
Opstal verzekering
Ja

Kadastrale gegevens

Kadastrale aanduiding
Maassluis A 4394
Omvang
Appartementsrecht of complex
Eigendomsituatie
Eigen grond
Indexnummer
12

Brochure(s) en overige bijlagen

merellaan-91-brochure.pdf Download