Nieuw in verkoop:Verfmolen 15, 3146 CX Maassluis - Foto
Nieuw in verkoop
+59

Verfmolen 15 3146 CX Maassluis € 685.000,- k.k.

  • Woonhuis
  • 6 kamers
  • 5 slaapkamers
  • 2 badkamers
  • Bouwjaar 1990
  • 294 m² perceeloppervlakte
  • 214 m² gebruiksoppervlakte
  • Gestoffeerd
  • B Energielabel B

Beschrijving

Stap binnen in een wereld waar kleur, licht en ruimte samenkomen.
Deze fors uitgebouwde woning met een riante keuken is uniek. Met 5 slaapkamers en 2 badkamers is dit hét perfecte gezinshuis waar iedereen zijn eigen favoriete plekje vindt. Wordt dit jouw nieuwe thuis? Je bent van harte welkom op deze toplocatie in Maassluis.

De woning is gelegen op een zeer gunstige locatie in de wijk Steendijkpolder. Het winkelcentrum bevindt zich op loopafstand net als de basisscholen en de diverse sportverenigingen zoals hockey, tennis en voetbal. Voor nog meer ontspanning kun je heerlijk wandelen in het park of fietsen langs de Waterweg richting Hoek van Holland. Daarnaast is de bereikbaarheid uitstekend: de metro is binnen vijf minuten te bereiken, net als de snelweg. Direct naast de woning is een heerlijk speelterrein met kabelbaan, glijbaan, voetbalveld en zandspeelplaats.

Indeling

Zoek je een woning die écht anders is dan de standaard? Welkom aan de Verfmolen 15 in Maassluis. Dankzij de forse uitbouw aan de zijkant is hier een fantastische, lichte leefkeuken ontstaan die het hart van de woning vormt.

Ruimte en gemak vanaf de voordeur
Bij binnenkomst ervaar je direct het praktische gemak: een hal met garderobe, toilet en een zeer complete bijkeuken. Deze bijkeuken is een luxe verlengstuk van je huishouden, voorzien van een extra keukenblok met boiler, grote koelkast, vriezer en een kamerhoge schuifwand voor al je voorraad.

Wonen & de riante leefkeuken
De woonkamer straalt warmte uit door de prachtige bamboe houten vloer en de sfeervolle openhaard. Vanuit de woonkamer loop je zo de geweldige zij-uitbouw in.

Hier vind je de droom van iedere kookliefhebber: een kleurrijke, blauwe Bruynzeel keuken met een stijlvol granieten aanrechtblad, 6-pits gasfornuis met grote oven, vaatwasser en koelkast. De donkere plavuizen vloer in de keuken vormt een stoer en praktisch contrast. Deze uitbouw biedt bovendien alle ruimte voor een riante eettafel en een heerlijke leeshoek.

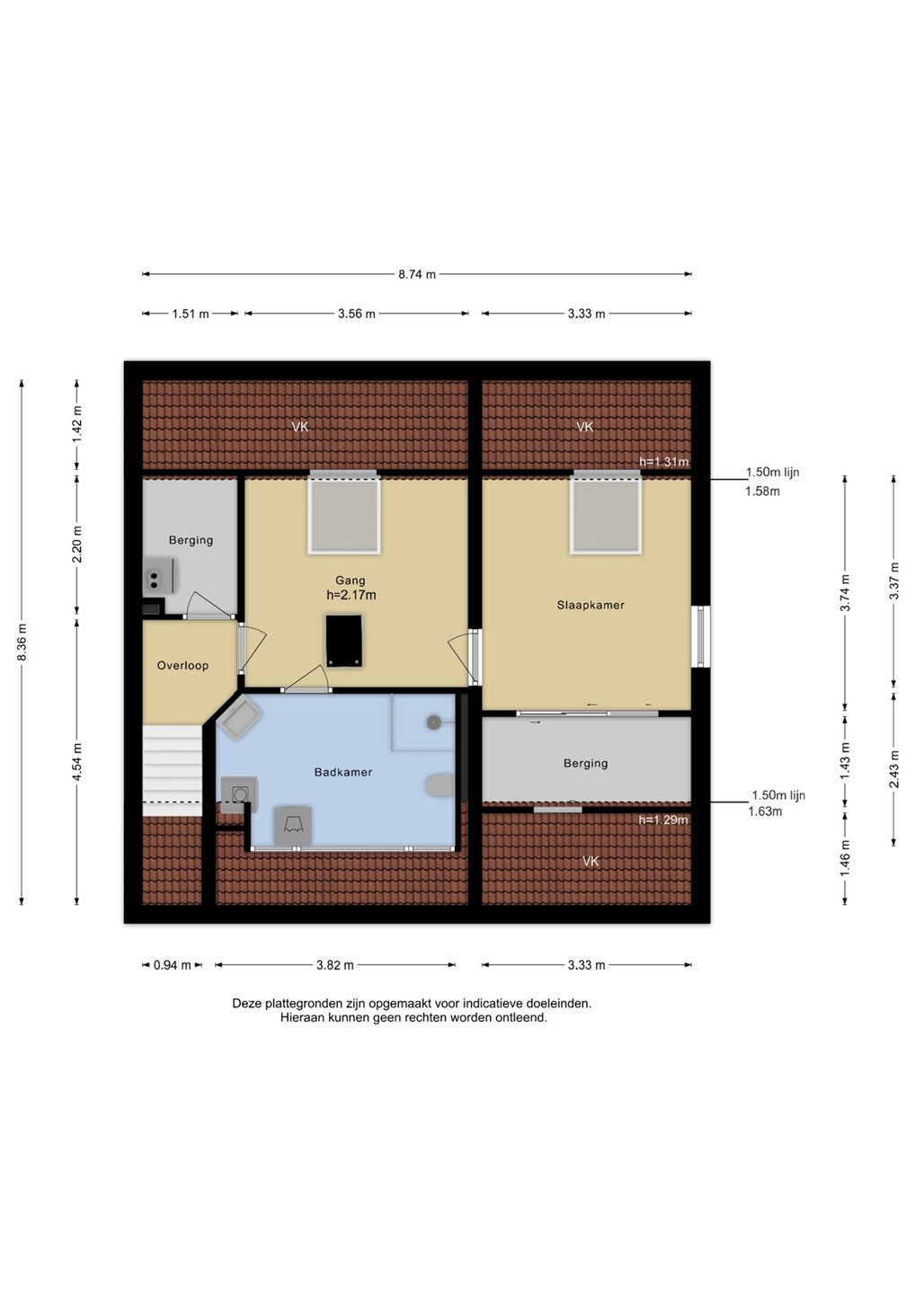
Eerste verdieping

Vier slaapkamers en een lichte badkamer Op de eerste verdieping wachten vier goed bemeten slaapkamers op een nieuw gezin.
Wat hier direct opvalt, is de prettige, brede overloop. Dankzij een extra raamkozijn baadt deze ruimte in het daglicht, wat een zeer ruimtelijk gevoel geeft.
De badkamer is modern en tijdloos met witte wandtegels en zwarte vloertegels, uitgerust met een ligbad (waarin ook gedoucht kan worden), een tweede toilet en een wastafel.

Tweede verdieping

Een luxe master suite
De tweede verdieping is een wereld op zich en biedt volop mogelijkheden. Via een heerlijke open ruimte met dakraam – die je perfect kunt inrichten als lichte werkplek of rustige leeshoek – bereik je de royale master bedroom. Deze kamer geniet van een prachtige lichtinval en beschikt over een grote kastenwand met een eigen inloopkast.

Geheel in stijl met de badkamer beneden, biedt deze tweede badkamer het comfort van een eigen douchecabine, wastafel en een derde toilet. De witgoedaansluiting is hier slim geïntegreerd in de ruimte.

Berging in overvloed
Opbergruimte is er in overvloed. Op deze etage is veel berging te gebruiken achter de knieschotten. is er via een vlizotrap op de overloop nog een grote bergvliering bereikbaar.

Overige verdiepingen

De royale vliering is via een vlizotrap op de overloop toegankelijk en biedt volop praktische bergruimte.

Tuin

Zonovergoten tuinen met privacy en parkeren op eigen terrein
Hier geniet je de hele dag van het buitenleven. Het begint al bij de voortuin op het oosten (60 m²), ideaal voor een eerste kop koffie in de ochtendzon. Extra comfortabel is de eigen parkeerplaats voor de deur, waardoor je altijd gemakkelijk en dichtbij huis parkeert.

De riante achtertuin op het westen (100 m²) is met zorg aangelegd en voorzien van veel vaste beplanting. Hierdoor zijn er meerdere gezellige en beschutte zitplekjes ontstaan, zodat je altijd een plekje in de zon of de schaduw vindt om heerlijk te ontspannen. De tuin beschikt uiteraard over een praktische schuur en een achterom.

Bijzonderheden

Kortom: Een verrassend ruim, kleurrijk en uniek ingedeeld familiehuis op een toplocatie!

-Oplevering-
medio juni 2026

-Bijzonderheden-
• Eigen parkeerplaats
• Lichte woonkamer en royale keuken
• 1ste etage 4 slaapkamers met badkamer
• 2de etage slaapkamer met badkamer
• Bijkeuken
• Riante achtertuin

-Dichtbij-
• Speeltuin
• Winkelcentrum Steendijkpolder (loopafstand)
• Sportverenigingen, park en Waterweg
• Metro en snelweg binnen ca. 5 minuten
• Winkelcentrum Koningshoek

In de koopovereenkomst wordt, gezien de leeftijd van de woning (ouder dan 20 jaar), standaard een ouderdomsclausule opgenomen. De verstrekte informatie is met zorg samengesteld en grotendeels gebaseerd op gegevens van derden. Aan de inhoud van deze informatie kunnen geen rechten worden ontleend.

Kaart

Kenmerken

Overdracht

Referentienummer
00246
Vraagprijs
€ 685.000,- k.k.
Elektra
€ 124,-
Gas
€ 125,-
Water
€ 12,-
Inrichting
Ja
Inrichting
Gestoffeerd
Status
Nieuw in verkoop
Aanvaarding
In overleg
Aangeboden sinds
Vrijdag 13 maart 2026

Bouw

Type object
Woonhuis, eengezinswoning, eind woning
Soort bouw
Bestaande bouw
Bouwperiode
1990
Dakbedekking
Bitumen
Dakpannen
Type dak
Samengesteld
Isolatievormen
Dakisolatie
Dubbel glas
HR-glas
Muurisolatie
Vloerisolatie

Oppervlaktes en inhoud

Perceeloppervlakte
294 m²
Woonoppervlakte
214 m²
Inhoud
752 m³
Oppervlakte overige inpandige ruimten
42 m²
Oppervlakte externe bergruimte
13 m²

Indeling

Aantal bouwlagen
4
Aantal kamers
6 (waarvan 5 slaapkamers)
Aantal badkamers
2 (en 1 apart toilet)

Locatie

Ligging
Aan rustige weg
Dichtbij openbaar vervoer
In woonwijk
Nabij school
Nabij snelweg

Tuin

Type
Achtertuin
Oriëntering
West
Heeft een achterom
Ja
Staat
Normaal
Tuin 2 - Type
Voortuin
Tuin 2 - Oriëntering
Oosten

Energieverbruik

Energielabel
B

CV ketel

CV ketel
Vaillant
Warmtebron
Gas
Bouwjaar
2016
Combiketel
Ja
Eigendom
Eigendom

Uitrusting

Aantal parkeerplaatsen
1
Warm water
CV-ketel
Elektrische boiler
Verwarmingssysteem
Centrale verwarming
Badkamervoorzieningen Badkamer 1
Douche
Ligbad
Toilet
Wastafelmeubel
Badkamervoorzieningen Badkamer 2
Douche
Toilet
Wastafel
Parkeergelegenheid
Parkeerplaats
Heeft een rookkanaal
Ja
Glasvezelaansluiting aanwezig
Ja
Tuin aanwezig
Ja
Heeft rolluiken
Ja
Heeft schuur/berging
Ja
Heeft een dakraam
Ja

Kadastrale gegevens

Kadastrale aanduiding
Maassluis A 3475
Perceeloppervlakte
294 m²
Omvang
Geheel perceel
Eigendomsituatie
Eigen grond

Brochure(s) en overige bijlagen

Brochure verfmolen-15.pdf Download